These images are used in good faith. The copyright owner may contact this website at mail@hamptonwickhistory.org.uk
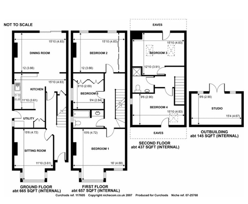
31 Cedars Road for sale September 2007





Estate Agent Publicity Material
These images are used in good faith. The copyright owner may contact this website at mail@hamptonwickhistory.org.uk
31 Cedars Road for sale September 2007